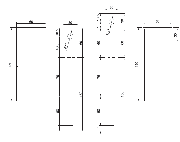
Description
Codice:
Zincato: LVD-STA-1-Z
Zincato: LVD-STA-2-Z
Inox: LVD-STA-1-I
Inox: LVD-STA-2-I
Utilizzo:
• Ancoraggi strutturali utili per la protezione anticaduta di uno o più
operatori
• Ottimale per l’installazione su qualsiasi tipo di supporto strutturale: parete
in C.A., parete in muratura, trave di colmo,trave di legno, supporto metallico.
Descrizione:
possono essere realizzate in acciao INOX AISI 304,
acciaio zincato o alluminio, di diverse dimensioni e forme. Sono specifiche per lamiera grecata, pannelli sandwich e lamiera aggraffata.
Tempi di consegna:
La consegna per questo prodotto avviene tra 15 e 20 giorni lavorativi.





